︎
Daniel Arev Architecture
Archive
Publications
About & contact
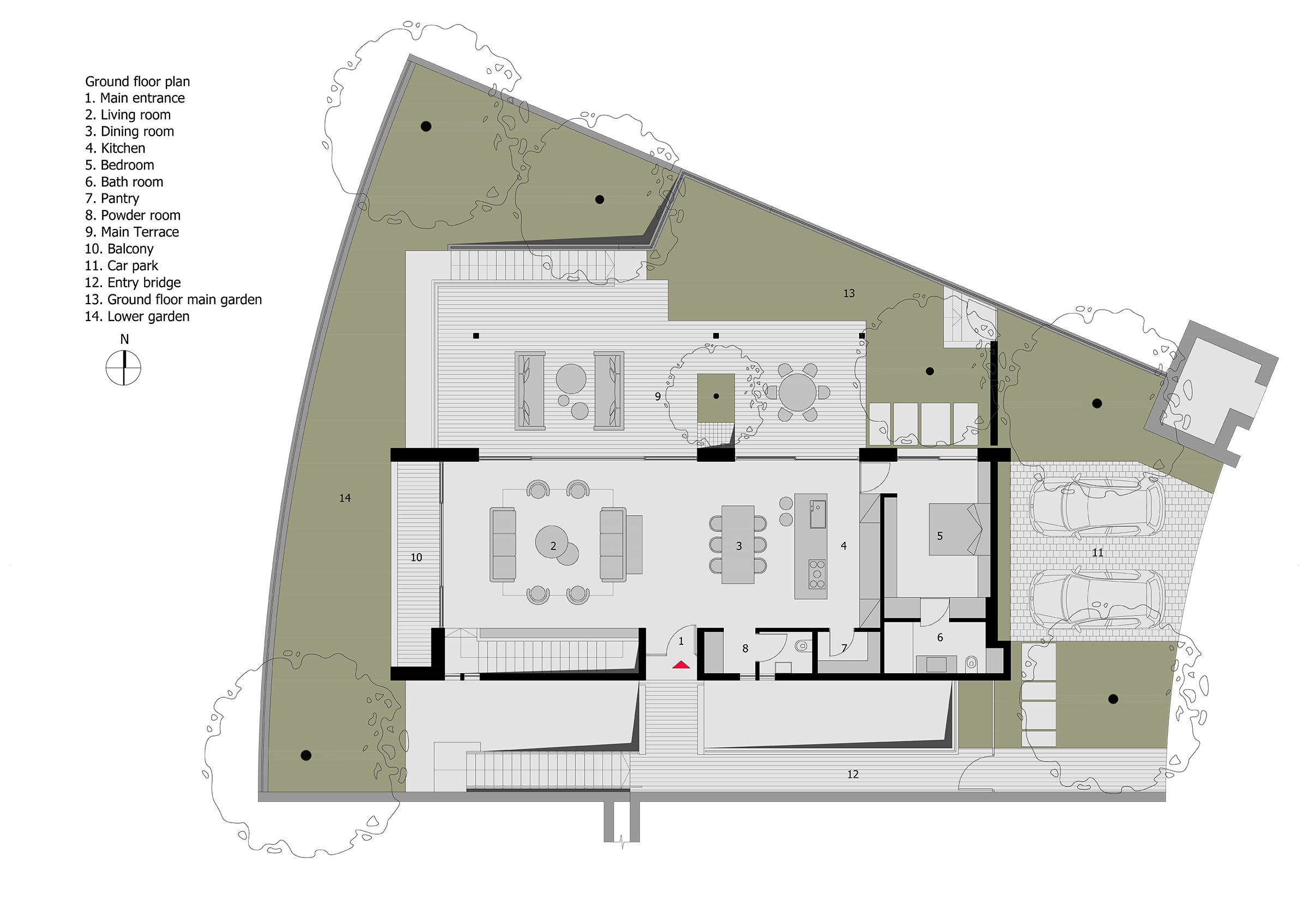
HB House
Type: Detached house
Site area: 500 sqm
Total floor area: 250 sqm
Year: 2022
Status: In progress
Location: Habonim , IL
⟵ Previous
Next ⟶
Daniel Arev Architecture
Archive
Publications
About & contact
N.M House No.3
N.M House No.2
N.Z House No.1
K.O House No.3&4
R.Z House No.1
R.Z House No.3&4
R.Z House No.4&5
K.S House No.1&2
Y.M House NO.4
N.M House No.1
K.S House No.3
H.P House No.1
R.Z House No.6&7
S.V House No. 1
K.O House No. 5
K.O House No.6
N.M House No.4
K.S House No.4
G.N House No.1
N.M House No.5
HB House
Writers House
N.M House No.6
N.M House No.7
K.0 House No.7
︎
︎
©All Rights Reserved Daniel Arev 2006-2023
Photography
Daniel Arev
Design
Studio Ross
Mark